Działka na sprzedaż Lyski, Bogunice

2005.00 m²
59,35 zł/m2
NOH-GS-1260
Oblicz ratę kredytu

119 000 zł

Działka na sprzedaż
Bez prowizji

Szczegóły oferty

Symbol oferty NOH-GS-1260
Powierzchnia 2 005,00 m²
Przeznaczenie działki budowlana
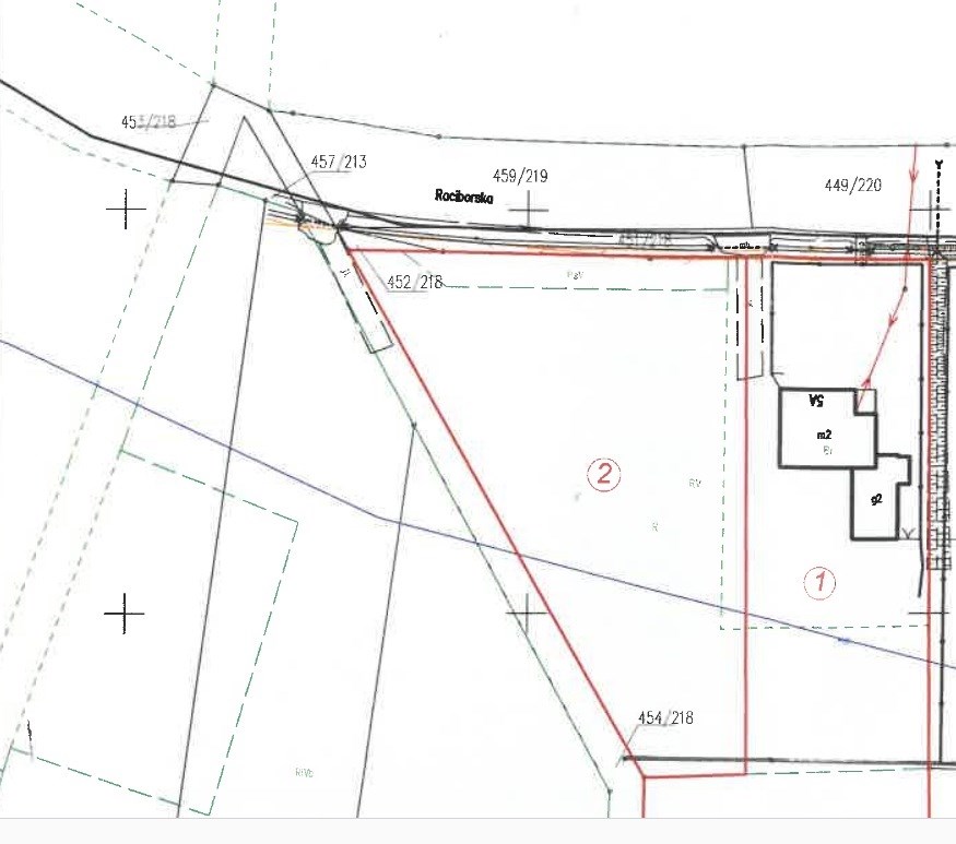
Wymiary działki 50 x 64 x 12 x 75 m
Ukształtowanie działki płaska
Kształt działki trapez
Woda w ulicy
Dojazd asfalt
Otoczenie las
Prąd w ulicy
Pomieszczenia

Opis nieruchomości

Rezerwacja

0% PROWIZJI!
KLIENT KUPUJĄCY NIE PONOSI KOSZTÓW BIURA NIERUCHOMOŚCI!


Przedstawiam na sprzedaż przepiękną działkę budowlaną
 położoną w Bogunicach przy ul. Raciborskiej. Parcele o kształcie prostokąta, płaska, objęta planem miejscowym - zabudowa mieszkaniowa. Działka położona jest w urokliwym miejscu pod lasem, posiada fajne wymiary, dostęp do drogi publicznej oraz mediów - prąd i woda. Fajnym atutem jest mały staw, który znajduje się na działce.

Najważniejsze informacje:

  • działki o regularnym kształcie trapezu i wymiarach 50 x 64 x 12 x 75 (pierwsza wartość to szerokość przy drodze - następne zgodnie ze wskazówkami zegara)
  • działki objęte planem miejscowym - tereny zabudowy mieszkaniowej
  • dostępne media to prąd i woda
  • ciche i spokojne miejsce pod lasem
  • wokół bardzo luźna zabudowa kilku domów, pola oraz las
  • brak obciążeń, założona Księga Wieczysta
  • NA ZAŁĄCZONEJ MAPIE GEODEZYJNEJ - DZIAŁKA NR 2
Działki położone są w bardzo fajnym i spokojnym miejscu, skąd dość szybko dostaniemy się do Rybnika oraz Raciborza. Panuje tutaj cisza, dzięki której można się zrelaksować po całym dniu pracy. Jeśli szukasz urokliwego otoczenia to koniecznie umów się na prezentację! 


0% PROWIZJI!
KLIENT KUPUJĄCY NIE PONOSI KOSZTÓW BIURA NIERUCHOMOŚCI!


Dodatkowo moim klientom oferuję: pomoc w uzyskaniu kredytu (jestem ekspertem od kredytów hipotecznych), ustalenie stanu prawnego nieruchomości, usługi wykwalifikowanego geodety, audyty energetyczne, ubezpieczenia.

​Prezentowana nieruchomość nie stanowi oferty w rozumieniu Kodeksu Cywilnego. Proszę o kontakt z naszym biurem, celem ustalenia szczegółów transakcji. Zastrzegamy sobie prawo do pomyłek i błędów.

Lokalizacja nieruchomości

Kalkulatory

Kalkulator kredytowy

Wysokość raty

PLN
%

Kalkulator kosztów

Podatek od czynności cywilno-prawnych

Taksa notarialna
(opłata notarialna)

Wniosek o wpis do KW

VAT od prowizji
agencji nieruchomości

VAT od taksy notarialnej
(opłaty notarialnej)

Prowizja agencji nieruchomości

Wypisy aktu notarialnego

Razem

Uwaga: mogą wystąpić dodatkowe opłaty za założenie księgi wieczystej oraz ustanowienie hipoteki.

PLN
PLN
PLN
PLN
PLN
PLN
%
PLN

Podobne oferty

Bez prowizji

Działka na sprzedaż

Lyski, Bogunice

4 293 m2 27,72 zł/m2
Bez prowizji

Manager

Proszę wprowadzić poprawne imię i nazwisko
Proszę wprowadzić poprawny numer telefonu
Proszę wprowadzić poprawny adres e-mail
Proszę zaznaczyć wymagane zgody
Rozwiąż równanie:
19 2
Niepoprawny wynik